본문의 내용을 유튜브 동영상으로 시청하실 수 있습니다.
우리는보통 슬래브 판이 있으면 이 슬래브 판에 가해지는 하중을 지반으로 전달하기 위해 기둥의 상단 즉 슬래브 아랫부분을 따라서 강성이 큰 보를 설치해서 슬래브의 하중을 큰보로 전달시킨 다음 큰보의 하중이 기둥으로 전달되는 방식으로 구조물을 많이 설계합니다.
그런데 슬래브 중에서 보가 없이 하중을 바로 기둥으로 전달하는 슬래브가 있는데요. 이처럼 슬래브에서 바로 기둥으로 하중을 전달하는 플랫 플레이트 슬래브가 있습니다. 평판슬래브라고도 하는데요. 이 슬래브는 기둥 주위를 따라서 뚫림 전단, 즉 펀칭 파괴가 일어날 위험이 크기 때문에 국내에서는 잘 쓰지 않는 편입니다.

대신 기둥 주변의 뚫림 전단을 보강하기 위해 지판 즉 드롭 패널을 설치해서 보강하는 방식을 많이 사용하는데요. 이런 슬래브를 플랫 슬래브라고 합니다.
구조설계를 할 때 다양한 요인을 고려해서 슬래브시스템으로 선정하게 되는데요. 기본적으로 경제성을 많이 따지게 되고,구조물에 작용하는 하중이나, 경간, 또 사용성 등을 포함해서 종합적으로 고려해서 판단하게 된다고 볼 수 있습니다.
무량판 구조에 해당하는 플랫 슬래브나 플랫 플레이트의 가장 큰 장점은 두꺼운 보가 없기때문에 층고를 낮출 있다는 점인데 둘 중에 어느 것이 나으냐 비교하는 관점에서는 작용하는 하중과 경간에 따라 달라지게 됩니다.
플랫 플레이트의 경우 기둥과 슬래브가 만나는 부분의 뚫림 전단이 크리티컬한 요인이 되기때문에, 경간이 7미터나 8미터 이상이고 작용하는 하중이 크면 뚫림전단력이 워낙 커지기 때문에 플랫 슬래브가 효율적이라고 보통 설명하고 있습니다.
그래서 다음 사례에서 보시는 것처럼 아파트 지하주차장처럼 가로 세로 균일한 경간으로 된 구조물에 많이 사용되고 있습니다.

위 사례에서는 기둥 사이의 경간이 8m인데요. 보시는 것처럼 플랫슬래브는 뚫림전단을 보강하기 위해 기둥 머리에 지판을 만드는 방식으로 설계되어 있습니다.
그래서 플랫 슬래브는 가로세로의 길이가 동일한 장방형 구조물에 특히 적합하다고 할 수 있습니다. 드롭패널의 알파벳 약자를 따서 DP라고 표기했구요. 이 현장에서는 1번과 2번 두 가지 형태의 드롭패널이 사용되었습니다.
드롭 패널도 가로 세로 크기가 동일한 형태가 유리하고, 그래서 경간이 가로 세로 동일한 정방형 구조물에 유리한 것을 알 수 있습니다.
현행 구조설계기준에서는 보가 있거나 또는 보가 없는 2방향 슬래브를 같은 시각에서 다루고 있습니다. 즉 하중이 2방향으로 전달된다는 관점에서는 동일하다고 할 수 있구요. 보가 있는 2방향 슬래브나 플랫슬래브 및 플랫 플레이트 슬래브 모두 2방향 바닥판 시스템이라고 할 수 있습니다.
보가 없기는 하지만 플랫 슬래브는 보의 높이가 0인 특수한 경우에 해당한다고 보면 됩니다. 따라서 플랫 슬래브도 2방향슬래브이기 때문에 하중이 2방향으로 전달된다고 할 수 있습니다.

그럼 보가 있는 2방향슬래브하고 뭐가 달라질까요? 보가 있는 슬래브는 이렇게 강성이 큰 보가 네 모서리에 깔리고 그 위에 슬래브 판이 얻혀있는 식입니다. 이렇게 단변 방향과 장변방향이 있으면 슬래브에 하중이 가해졌을 때, 이렇게 가운데 부분이 오목하게 구부러지는 식으로 변형됩니다.
보가 있는 외측면쪽은 강성이 큰 보가 짱짱하게 버티고 있기 때문에 잘 구부러지지 않고 가운데 부분만 크게 구부러져서 휨모멘트가 크게 발생하게 됩니다.

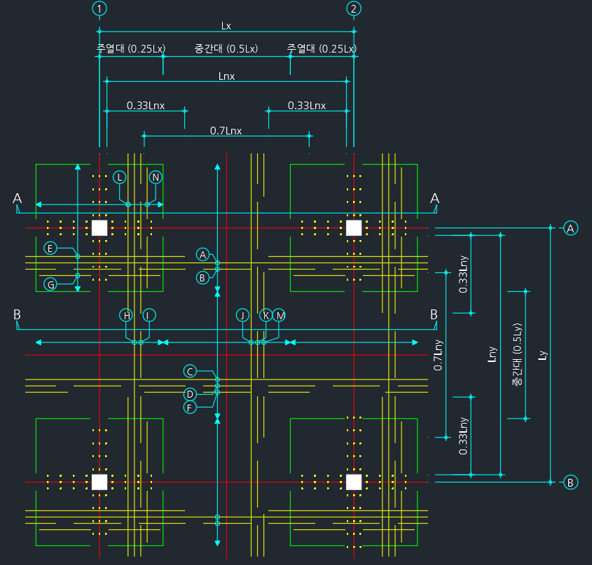
그래서 2방향슬래브를 설계할 때는 휨모멘트가 아래로 크게 발생하는 중간부분과 주변부분을 구분해서 설계를 하게 되는데요. 단변방향에서 주열대 구간은 Lx의 1/4만큼 해당하는 구간이 주열대 구간이 됩니다. 장변방향에서 주열대 구간은 Ly의 1/4만큼 해당하는 구간이 주열대 구간이 됩니다. 이것은 설계법에 따라 달라질 수 있는데요.
슬래브를 설계하는 방법이 하나가 아니라서 구조설계하는 방식에 따라서는 장변방향에서 주열대 구간이 단변의 길이인 Lx의 1/4만큼 해당하는 구간이 주열대 구간이 되기도 합니다.
그럼 플랫슬래브는 주열대와 중간대를 어떻게 나눌까요? 플랫 슬래브는 이렇게 슬래브의 네 모서리에 기둥을 세우고, 그 위에 지판을 놓은 다음 슬래브가 얹히게 됩니다.
플랫 슬래브에서 주열대 구간은 단변의 길이인 Lx의 1/4만큼 해당하는 구간이 주열대 구간이 됩니다. 장변방향 주열대 구간은 Ly의 1/4만큼 해당하는 구간이 주열대 구간이 됩니다.

여기서 중요한 부분은 보가 있는 2방향 슬래브와는 달리 주열대 구간인 기둥열을 따라서 높이가 0인 가상의 보가 있다고 보고 , 이 부분으로 힘이 많이 전달된다고 보아야 한다는 점입니다.
따라서 이 주열대 구간을 지나갈 때는 부모멘트 즉 위로 구부러지는 힘에 저항할 수 있도록 상부근을 많이 배치해주어야 합니다. 구조도면의 일반주기사항에서는 다음과 같이 표기됩니다.

앞의 사례를 계속 살펴보겠습니다. 이 평면도는 앞에서 보여드린 평면도보다 한 층 높은 윗층의 평면도 입니다. 여기서는 지붕층이라고 표기되어 있는데요.아파트 지하주차장 맨 윗층을 말하구요.

슬래브 배근 리스트를 보시면 상부근으로 UHD 16미리 철근을 300간격으로 X방향 Y방향 모두 배근하라고 되어 있습니다. 하부근으로 SHD 13미리 철근을 300간격으로 X방향 Y방향 모두 배근하라고 되어 있습니다.
여기서 UHD는 철근의 강종이 600Mpa인 울트라 고강도 철근을, SHD는 철근의 강종이 500Mpa인 슈퍼 고강도 철근을 의미합니다. 그러니까 강재의 종류를 다른 것을 써야 하고 상부근이 강도도 높고 철근지름도 굵은 것을 알 수 있습니다.
기본적으로 슬래브에 작용하는 휨모멘트에 대응하기 위해 기본근을 배근하구요. 또 별도로 보강근을 배치하라고 표기되어 있습니다 .
이 보강근은 주열대 구간과 중간대 구간에 추가적으로 보강하기 위해 배치하는 철근을 말하는데요. 그럼 이렇게 X방향 배근도가 있는데요. 플랫 슬래브에서는 기둥열을 따라 지나가는 가상의 보가 있는 구간이 주열대가 되겠죠.

이 주열대 구간에서는 1번 철근을 보강하라고 되어 있습니다. 여기에 보강하는 철근은 강종이 SHD인 16 철근을 300 간격으로 상부에 2가닥을 배치하라고 되어 있습니다 .
기본 철근이 300간격으로 되어 있었으니까,. 2가닥을 보강하려면 100간격으로 2가닥을 배치하면 되겠죠?
그런데 앞에서 기본 철근으로 사용한 D16철근은 UHD를 썼지만 지금 보강하는 D16은 SHD를 사용해야 하니까 주의해야 합니다 .
개인적으로는 동일한 지름의 철근의 강종을 이렇게 여러 개 사용하도록 만들면 현장에서 철근을 잘 못 사용할 수 있기 때문에 바람직하지 않다고 생각합니다만, 어쨌든 이렇게 주열대구간에는 부 모멘트 위로 구부러지는 힘이 작용하기 때문에 상부근을 보강하는 것을 알 수 있습니다.
이 상부 보강근을 배치할 때는 정착방법이나 정착길이를 잘 지켜야겠죠? 그래서 이렇게 양쪽의 경간이 L1과 L2인 플랫 슬래브가 있을 때, 여기서 주의할 점은 정착길이를 산정할 때 기둥의 폭을 뺀 순경간을 기준으로 해야 합니다.

그래서 상부 보강근은 단부에 있는 기둥에 정착을 하고 내부 경간을 지나갈 때는 이렇게 양쪽으로 충분히 정착해서 길이를 뽑아줘야 합니다. 이 때 정착길이를 뽑는 방법은 보의 배근과 마찬가지로 양쪽 경간을 비교해서 긴 경간을 기준으로 0.33만큼 곱해서 나온 값만큼 내밀어줘야 합니다.
구조 기준상으로는 보강철근의 50% 이상을 이렇게 정착하고, 나머지 철근은 긴 경간을 기준으로 0.2를 곱한 만큼 내밀어서 배치하도록 규정하고 있습니다.
앞의 사례에서는 경간의 길이인 8000에 0.3을 곱한 정도만큼 내밀어서 배치하도록 해서 길이가 5000이 되도록 철근을 잘라서 배치하도록 했습니다. 어쨌든 배근을 조금 단순화시킨 것은 현장에서 배근 실수를 줄일 수 있기 때문에 바람직하다고 생각합니다..
위 사례에서 중간대 배근을 보시면 중간대를 지나는 2번 보강철근을 배치하라고 되어 있습니다.

이 2번철근은 SHD 10번 철근을 300간격으로 Bottom 즉 아랫쪽에 배치하도록 되어 있습니다. 중간대는 정모멘트가 작용해서 가운데 부분이 아래로 구부러지니까 당연히 하부에 철근을 배치하도록 했습니다 .
그럼 중간대 하부근은 어떻게 정착해야 할까요? 다음 그림과 같이 기둥의 폭을 뺀 순경간이 L1, L2 로 된 플랫 슬래브가 있으면 양쪽에서 남겨 놓는 구간의 길이가 경간의 0.15배가 되도록 배치해야 합니다.

사례도면으로 시면 최대 길이가 6000이 되도록 배치하라고 되어 있습니다. 경간이 8000이고 기둥폭이 500정도니까 7500에 0.7를 곱해서 나온 값보다는 조금 길에 배치하도록 되어 있습니다.
이렇게 보면 중간대보다는 주열대의 철근량이 많은 것을 알 수 있겠죠? 그러니까 주열대가 더 힘을 많이 받습니다.
▶ 다음글 플랫 슬래브 전단 보강/ 전단 보강근
다음은 슬래브 배근과 관련된 내용입니다.
| 벽체 배근 상세 - 최상층 벽체, 두께가 변하는 경우 등 (0) | 2025.04.15 |
|---|---|
| 플랫 슬래브 전단 보강/ 전단 보강근 (2) | 2023.07.02 |
| 최소 철근비/ 수축·온도철근/ 슬래브 배근 (0) | 2023.06.19 |
| 계단 배근 (3) | 2023.05.05 |
| 조립용 철근 - 우마근, 기리바리 (0) | 2023.01.08 |