보 철근을 배근하려면 배근에 관한 기본적인 사항은 모두 숙지해야만 합니다. 정착길이나 이음길이를 산출하는 방법은 여기서 별도로 설명하지 않겠습니다. 관련된 내용을 보시기 바랍니다.
▶ [이음과 정착] - 표준갈고리를 갖는 이형철근의 정착길이
이제 실제 배근 치수는 어떻게 정해지는지 살펴 보겠습니다. 사례는 다음 도면으로 하겠습니다. 전형적인 라멘구조로 된 사무소 건물입니다. 일방향 슬래브로 설계되었고 기둥과 보가 다양하게 짜여있는 것을 알 수 있습니다. 여기서는 맨 위쪽에 빨간색으로 감싼 부분만을 살펴 보겠습니다. G2보 네 개가 연속되어 있는데, 전부 나타내기에는 너무 길기 때문에 두 개만 있다고 가정하고 배치해보겠습니다. 그리고 순경간(Span)치수도 6000과 5000으로 바꾸어서 배치하겠습니다.

평면도상의 보의 위치와 경간 등을 확인했으니 이제 도면 뒤쪽의 보 부재 일람표를 확인해 보겠습니다.

부재리스트를 보니 외단부와 내단부가 동일한 형태이고 상부근 HD22를 다섯 가닥 배치하는 것으로 되어 있습니다. 중앙부는 HD22를 세가닥 배치하면 됩니다.
상부근을 배치할 때 제일 먼저 고려해야 하는 철근은 단부와 중앙부에 연속해서 배치해야 하는 철근입니다. 상부근의 개수를 보면 단부가 다섯 가닥, 중앙부가 세 가닥입니다. 따라서 보 단면 전체에 걸쳐 최소 개수인 세 가닥을 연속해서 배치해야 합니다.
우선 양쪽 모서리에 있는 상부근 두 가닥 배치해 보겠습니다.

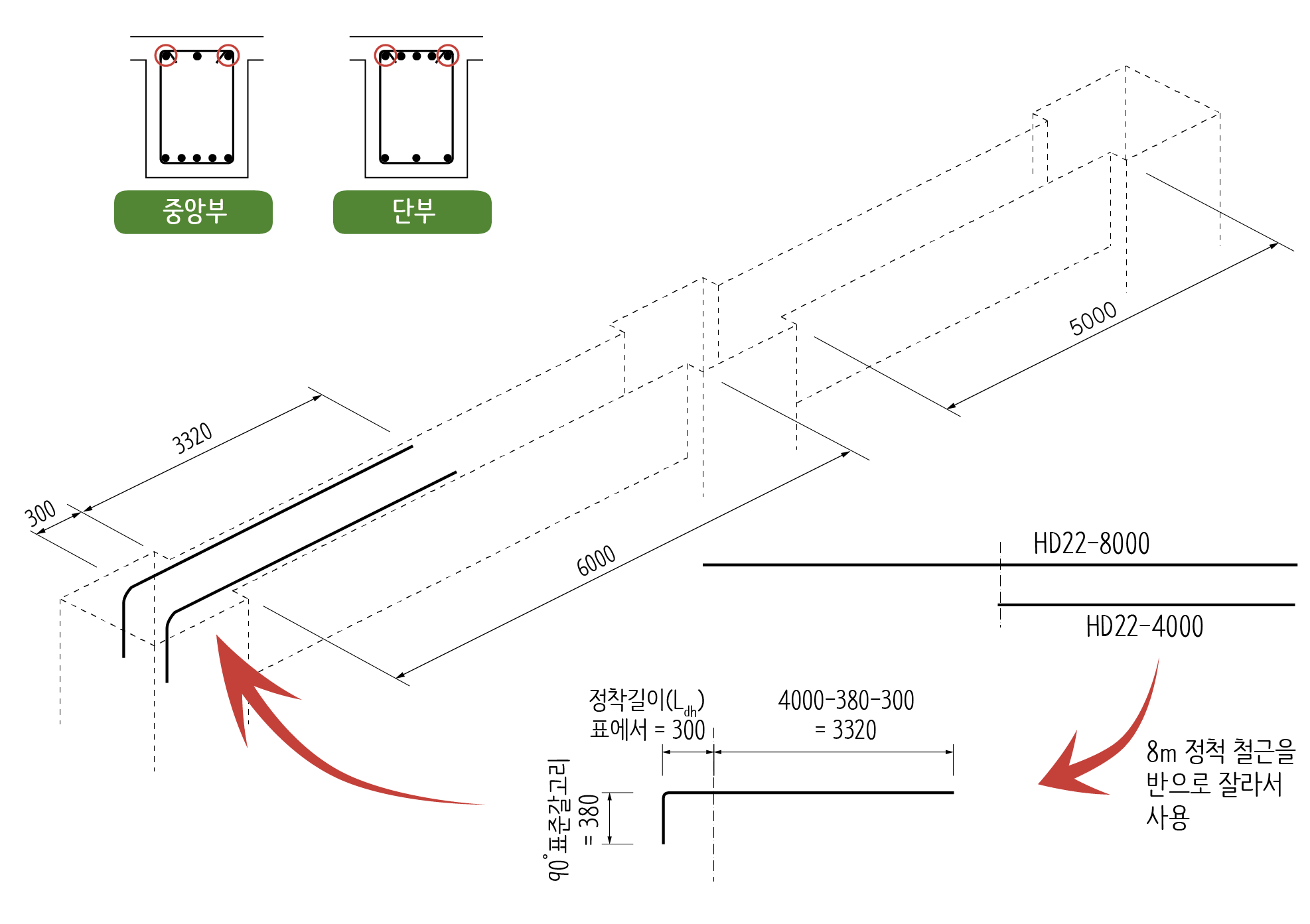
제강사에서 가장 일반적은 생산하는 철근의 표준길이(정척)가 8m인데, 이 정척길이를 반으로 자른 4m 철근을 많이 배치합니다. 경간이 6m 안밖일 때 4m 철근을 잘라서 배치하면 경간 중앙부에서 이어질 가능성이 크기 때문입니다. 4m로 자른 철근 끝에 90˚ 표준갈고리를 만들고 '표준갈고리를 갖는 이형철근의 정착길이'만큼 기둥 안쪽으로 배치해주면 됩니다. 그 다음에 철근을 이어서 배치합니다.

8m 정척길이 철근을 이어서 배치해주는데 인장이형철근의 이음길이만큼 겹쳐서 이어줍니다. 여기서 이음길이는 B급 인장철근의 이음길이를 적용하는데 상부철근의 정착길이를 적용해야 합니다. 콘크리트 밑면에서 위쪽으로 30cm 이상 위치하는 상부철근은 하부철근보다 이음길이를 1.3배 이상 길게 해주어야 합니다. 블리딩 현상때문에 철근의 부착력이 약해지기 때문에 그렇습니다.
잇고 보니 철근이 모자라서 철근을 하나 더 배치해야만 합니다. 만일 첫번째 배치하는 철근을 8m로 했다면 충분히 커버할 수 있을 것 같습니다. 그러면 이음을 한 번만 해도 되기 때문에 조금 더 쉽게 철근을 배치할 수 있을 것 같습니다.
이제 나머지 철근을 배치해 줍니다.

경간이 두 개만 있다고 가정했기 때문에 보 상부근을 기둥에 정착해야만 합니다. 따라서 90˚ 표준갈고리를 만들고 '표준갈고리를 갖는 이형철근의 정착길이'만큼 기둥 안쪽으로 배치하는 것은 반대쪽과 똑 같습니다.
이렇게 하면 양쪽 모서리에 있는 상부근 두 개를 배치했습니다. 연속되는 철근이 세 가닥이었기 때문에 한 가닥을 더 배치해 주어야 합니다. 그런데 똑같이 배치하면 이음구간이 겹쳐지기 때문에 구조적으로 좋지 않습니다.

따라서 이음구간이 겹치지 않도록 뒤집어서 배치합니다. 즉 먼저 배치했던 배근 형태의 좌우를 바꾸어서 배치하는 것입니다. 다른 방법을 쓴다면 8m 철근을 맨 처음 배치하는 방법을 쓸 수도 있습니다. 이렇게 해서 단부와 중앙부를 지나가는 연속 배치하는 상부근을 배치했습니다.
다시 부재 리스트를 보면 단부에는 상부근을 다섯 가닥 배치해야 하기 때문에 두 가닥을 더 배치해야 하는 것을 알 수 있습니다(5 - 3 = 2).
이 두 가닥은 중앙부에 배치할 필요가 없기 때문에 일정한 길이만큼 잘라주어야 합니다. 자르는 길이는 내단부와 외단부가 다르기 때문에 주의해야 합니다.

외단부에서는 경간의 1/4 길이에서 잘라야 합니다. 따라서 90˚ 표준갈고리 + 표준갈고리를 갖는 이형철근의 정착길이 + 1500(6000×0.25) 만큼 철근을 절단한 후 90˚ 표준갈고리를 만들어 배치합니다.
이제 내단부 철근을 배치해 보겠습니다.

내단부에서 내민 길이를 산정할 때는 경간의 길이에 0.3을 곱해서 계산합니다. 그런데 반드시 양쪽 경간의 길이를 비교해서 긴 쪽의 경간값을 기준으로 계산해야 합니다. 따라서 경간이 5m 인 부분에서 내민 길이도 1800으로 해야 합니다.
이제 마지막으로 오른쪽 단부 상부근만 남았습니다.

치수를 계산하는 방법은 반대쪽(왼쪽)과 동일합니다. 다만 내민길이를 계산할 때 경간이 5000이기 때문에 5000 × 0.25로 계산하는 것만 차이가 있습니다.
보 철근을 배치하는 방법은 여러가지가 있지만 일반적으로 많이 쓰는 방법을 살펴봤습니다.
이어서 하부근을 어떻게 배치하는지 살펴보겠습니다.
▶ [부재별 배근] - 보 배근 2 - 하부 주근
철근 지식 저장소 목차
철근 지식 저장소를 둘러보기 편하도록 목차 형태로 연결해 놓았습니다. 많은 분들에게 도움이 되었으면 좋겠습니다. 먼저 철근 재료에 대한 내용입니다. [철근 재료] - 철근과 콘크리트의 궁합
next-rebar.tistory.com
| 상하 기둥 단면의 크기가 다를 때 - 옵셋굽힘철근 (2) | 2021.02.23 |
|---|---|
| 보 배근 2 - 하부 주근 (6) | 2021.02.18 |
| 기둥 띠철근의 배치 (2) | 2021.02.03 |
| 보 배근 - 스터럽 배치 (0) | 2021.02.01 |
| 보 배근 - 주근 배치 기준 (15) | 2021.02.01 |